収納が充実した南向き6LDK!
陽当り良好♪駐車場有り♪
堺市堺区海山町4丁戸建
- 価格
- 2580万円
- 中古戸建
- 間取
- 6LDK
|
|
| 所在地 | 大阪府堺市堺区海山町4丁 堺市堺区海山町4丁戸建 |
|---|---|
| 交通 | 南海本線七道駅 徒歩13分 阪堺電気軌道阪堺線神明町駅 徒歩14分 南海本線「堺」徒歩16分 |
| 築年月 | 1995/11 | 新築/中古 | 中古 |
|---|---|---|---|
| 面積 | 130.15m² | 計測方式 | 内法 |
| バルコニー | m² | 向き | |
| 建物階数 | 地上2階 | 部屋階数 | 階 |
| 部屋/区画番号 | 総戸/区画数 | 1 | |
| 建物構造 | 木造 | ||
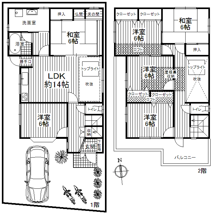
| 間取内容 | 1階LDK14畳1室 1階洋室6畳1室 2階洋室6畳2室 1階和室6畳1室 2階和室6畳1室 |
||
| 駐車場 | 0円 | 取引態様 | 専属 |
| 引渡/入居時期 | 相談 | 現況 | 居住中 |
| 地目 | 宅地 | 用途地域 | 第一種住居 |
| 都市計画 | 市街化区域 | 地勢 | 平坦 |
| 土地面積 | 119.93m² | 土地面積計測方式 | 公簿 |
| セットバック | 無 | セットバック量 | m² |
| 建ぺい率 | 60% | 容積率 | 200% |
| 土地権利 | 所有権 | 接道状況 | 一方 |
| 接道方向1 | 南 | 接道間口1 | 8.0m |
| 接道種別1 | 公道 | 接道幅員1 | 6.0m |
| 位置指定道路1 | |||
| 国土法届出 | 不要 | ||
| 周辺環境 | 三宝小学校 約500m 月州中学校 約950m | ||
| 設備・条件 | ガスコンロ 給湯 追い焚き 洗髪洗面化粧台 独立洗面台 バス・トイレ別 室内洗濯機置き場 都市ガス 公営水道 排水下水 駐車場有 出窓 フローリング 屋根裏収納 ロフト 吹抜け 全居室6帖以上 | ||
| 物件番号 | 00425 | ||
| 自社物 | 自社物 | 状態 | 売出中 |
※物件掲載内容と現況に相違がある場合は現況を優先と致します。
問合せ先
綿谷不動産販売株式会社 〒590-0971 大阪府堺市堺区栄橋町1丁5-10 フリーコール☎0120-369-123/TEL 072-222-4333 / FAX 072-222-4334 営業時間:09:30~18:30 (定休日:毎週火曜日・水曜日) 宅建免許番号: 大阪府知事免許(1) 第57668号メールでのお問い合わせはこちら









