堺東駅徒歩5分の恵まれた住環境!
室内美麗な三方角住戸です!
堺東ロイヤルハイツnew
- 価格
- 1780万円
- 中古マンション
- 間取
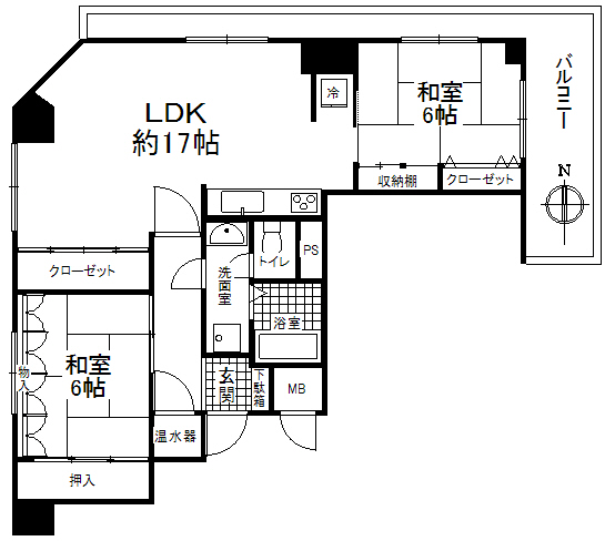
- 2LDK
- 共益費・管理費
- 9720円
|
|
| 所在地 | 大阪府堺市堺区南向陽町1丁 堺東ロイヤルハイツ |
|---|---|
| 交通 | 南海高野線堺東駅 徒歩5分 阪堺電気軌道阪堺線花田口駅 徒歩10分 |
| 築年月 | 1980/07 | 新築/中古 | 中古 |
|---|---|---|---|
| 面積 | 70.97m² | 計測方式 | 壁芯 |
| バルコニー | 13.69m² | 向き | 北西 |
| 建物階数 | 地上7階 | 部屋階数 | 2階 |
| 部屋/区画番号 | 総戸/区画数 | 34 | |
| 建物構造 | RC | ||
| 管理形態 | 全部委託 管理人巡回 管理組合有 | ||
| 間取内容 | LDK17畳1室 和室6畳2室 |
||
| 住宅保険料 | 年 | 修繕積立金 | 10860円 |
| 駐車場 | 空無 | 取引態様 | 専属 |
| 引渡/入居時期 | 期日指定 2026/07 上旬 | 現況 | 居住中 |
| 地目 | 宅地 | 用途地域 | 商業 |
| 都市計画 | 市街化区域 | 地勢 | 平坦 |
| 周辺環境 | 熊野小学校 約650m 殿馬場中学校 約300m | ||
| 設備・条件 | 角部屋 ガスコンロ 三口コンロ システムキッチン 食器洗い乾燥機 給湯 洗髪洗面化粧台 独立洗面台 室内洗濯機置き場 都市ガス 公営水道 排水下水 エレベータ 駐輪場 バルコニー 2021年11月電気温水器新調・2025年1月食洗機新調 | ||
| 物件番号 | 00433 | ||
| 自社物 | 自社物 | 状態 | 売出中 |
※物件掲載内容と現況に相違がある場合は現況を優先と致します。
問合せ先
綿谷不動産販売株式会社 〒590-0971 大阪府堺市堺区栄橋町1丁5-10 フリーコール☎0120-369-123/TEL 072-222-4333 / FAX 072-222-4334 営業時間:09:30~18:30 (定休日:毎週火曜日・水曜日) 宅建免許番号: 大阪府知事免許(1) 第57668号メールでのお問い合わせはこちら















